首页
米兰官网首页登录入口
公司概况
发展历程
资质荣誉
厂区环境
视频中心
最新资讯
企业动态
行业动态
展会信息
团建活动
铝锭报价
产品系列
新品汇
米兰娱乐网官网
米兰足球
米兰体育彩票软件
工程案例
工程案例
米兰足球比分结果预测
熔铸设备
模具挤压
表面处理
隔热穿条
检测设备
成品包装
人才招聘
联系我们
联系方式
在线地图
在线反馈
0757-87653388
语言:
ac米兰的体育
产品系列
product
诚信、敬业、务实、创新 多元化满足需求 高品质赢得信任
新品汇
米兰娱乐网官网
米兰足球
米兰体育彩票软件
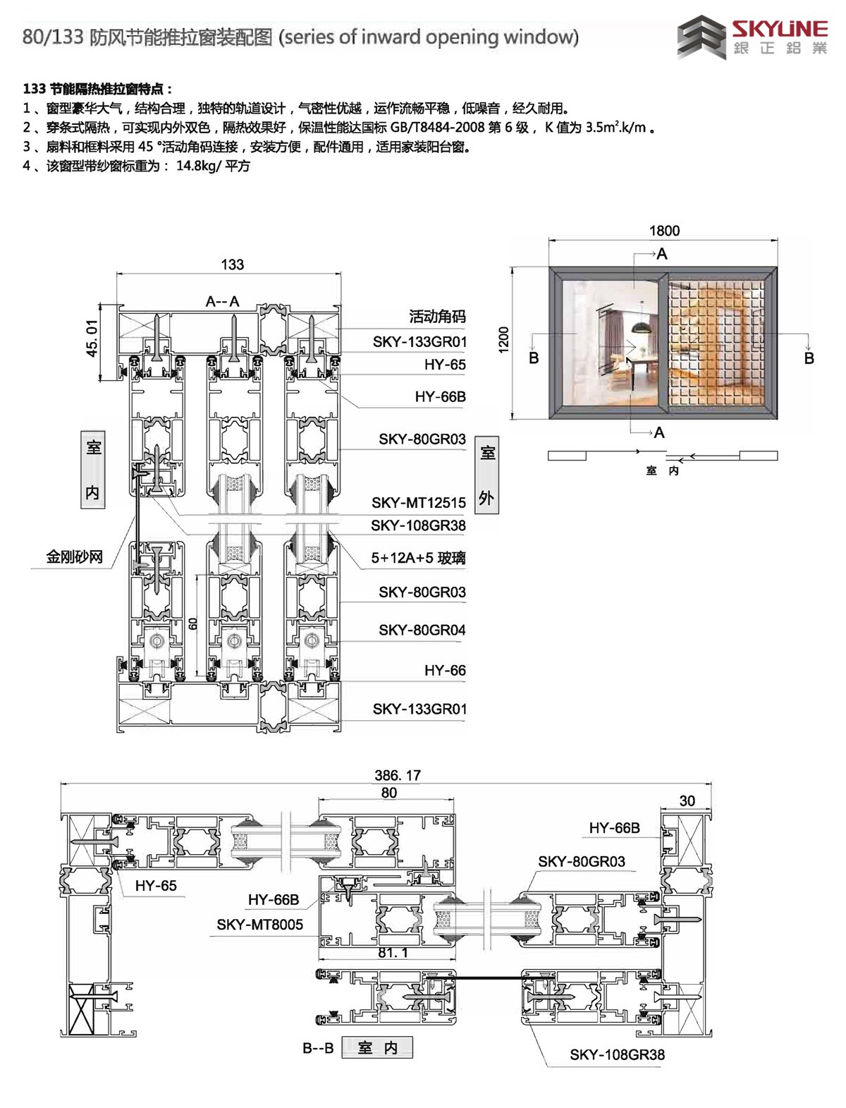
80/133防风节能推拉窗装配图
其他产品
MG系列壁柜门装配图
MT125系列重型推拉门装配图
SKY-XT系列三轨推拉门装配图
MP88系列双包平开门装配图
MT113 系列推拉门窗装配图
PT-C108
MT125C 系列推拉门装配图
MT105 系列推拉门装配图
MT94A 系列推拉装配图
MT90G 系列推拉窗装配图
MP85 系列双包平开门装配图
MT90C 系列推拉窗装配图
MT90A 系列推拉窗装配图
MT80 系列推拉窗装配图
108 断桥推拉窗装配图
190 三轨重型推拉门装配图
133 三轨推拉窗装配图
126 三轨推拉门装配图
120 两轨推拉门装配图
138GR 隔热断桥窗纱一体平开窗装配图
112GR 隔热断桥窗纱一体平开窗装配图
108CS 隔热断桥窗纱一体窗装配图
108GR 隔热断桥窗纱一体平开窗装配图
100 隔热断桥窗纱一体平开窗装配图
98/108 隔热节能窗纱一体窗装配图(穿条)
70CS 窗纱一体平开窗装配图
90 创新节能一体平开窗装配图
85 创新节能窗纱一体平开窗装配图
CP90 隔热断桥窗纱一体平开窗装配图
85 创新节能窗纱一体平开窗装配图
68 创新节能窗纱一体平开窗装配图
125 平框幕墙窗装配图
115 平框幕墙窗装配图
145 断桥窗纱一体装配图
135断桥窗纱一体装配图
120 断桥窗纱一体装配图
108断桥窗纱一体装配图
100 断桥窗纱·一体装配图
120 断桥窗纱一体平开窗装配图
120断桥窗纱一体平开窗装配图
120断桥窗纱一体平开窗装配图
108 断桥窗纱一体平开窗装配图
92 断桥窗纱一体平开窗装配图
90 非断桥窗纱一体装配图
75断桥窗纱一体简图
68断桥窗纱一体装配图
68 断桥平开门装配图
80非断桥窗纱一体装配图
68非断桥窗纱一体装配图
35 平开纱门装配图
返回顶部
acc米兰体育