首页
米兰官网首页登录入口
公司概况
发展历程
资质荣誉
厂区环境
视频中心
最新资讯
企业动态
行业动态
展会信息
团建活动
铝锭报价
产品系列
新品汇
米兰娱乐网官网
米兰足球
米兰体育彩票软件
工程案例
工程案例
米兰足球比分结果预测
熔铸设备
模具挤压
表面处理
隔热穿条
检测设备
成品包装
人才招聘
联系我们
联系方式
在线地图
在线反馈
0757-87653388
语言:
ac米兰的体育
产品系列
product
诚信、敬业、务实、创新 多元化满足需求 高品质赢得信任
新品汇
米兰娱乐网官网
米兰足球
米兰体育彩票软件
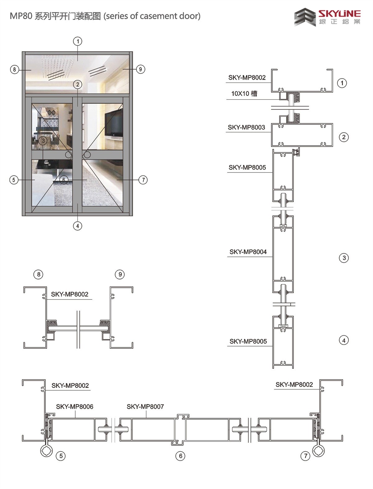
MP80系列平开门
其他产品
LYZX系列地弹簧门
X88艺术系列平开门
46系列地弹簧门
ZCM系列平开门
KM50系列平开门
70系列平开门
SKY-GRM150系列四扇提升推拉门
卷闸门系列
栏杆系列
间墙系列
返回顶部
acc米兰体育