首页
米兰官网首页登录入口
公司概况
发展历程
资质荣誉
厂区环境
视频中心
最新资讯
企业动态
行业动态
展会信息
团建活动
铝锭报价
产品系列
新品汇
米兰娱乐网官网
米兰足球
米兰体育彩票软件
工程案例
工程案例
米兰足球比分结果预测
熔铸设备
模具挤压
表面处理
隔热穿条
检测设备
成品包装
人才招聘
联系我们
联系方式
在线地图
在线反馈
0757-87653388
语言:
ac米兰的体育
产品系列
product
诚信、敬业、务实、创新 多元化满足需求 高品质赢得信任
新品汇
米兰娱乐网官网
米兰足球
米兰体育彩票软件
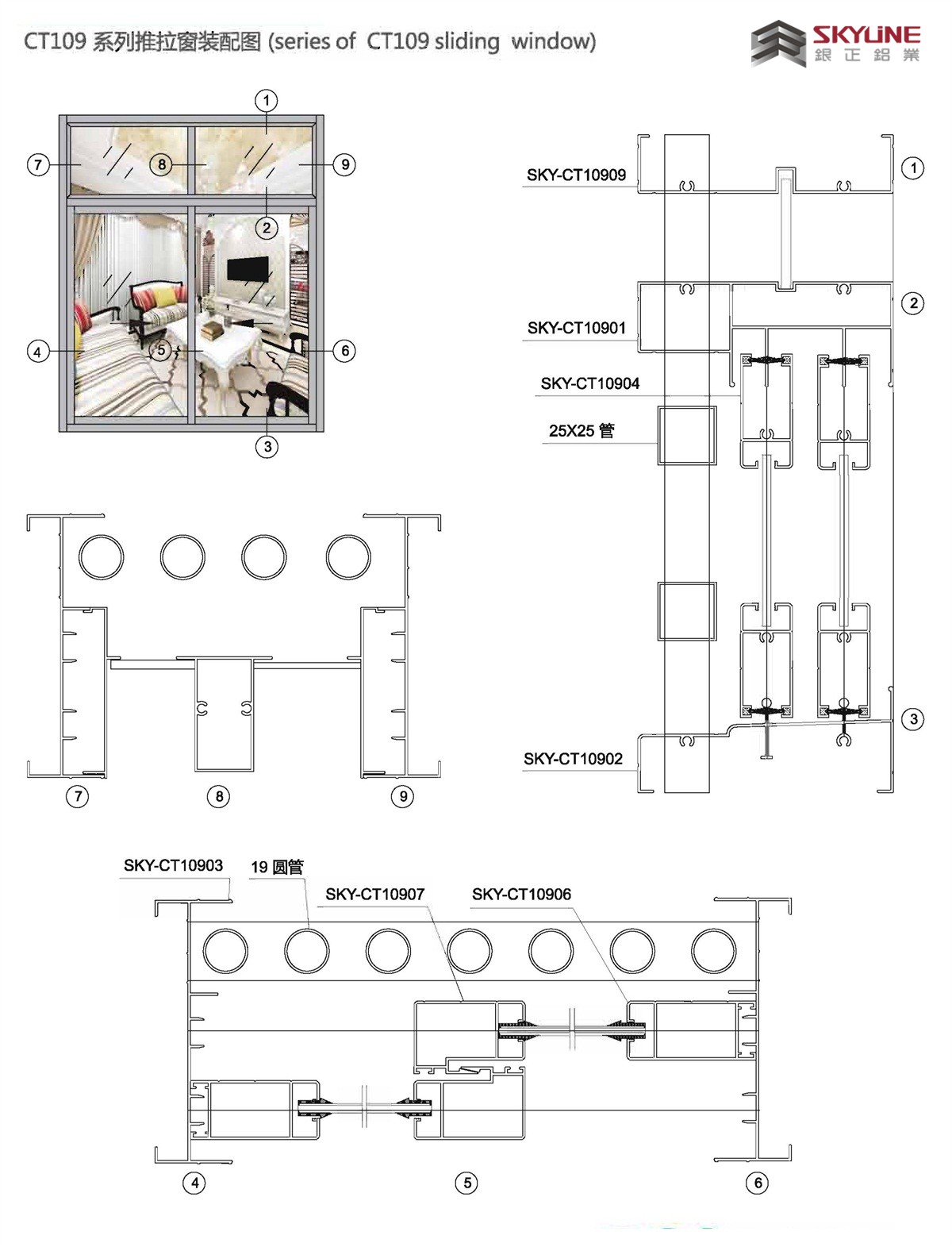
CT109系列推拉窗
其他产品
MT100系列推拉窗
Ct92系列推拉窗
CT90C系列推拉窗
W90系列推拉窗
MT88系列推拉窗
CT90A系列推拉窗
90M系列推拉窗
CT90H系列推拉窗
88JY推拉窗
CT87推拉窗
CT86推拉窗
SKY868推拉窗
CT85推拉窗
SKY858推拉窗
JM85
XSEK85推拉窗
85A推拉窗
MT82A推拉窗
CT80推拉窗
D798推拉窗
CT78A推拉窗
A78
CT768推拉窗
76W推拉窗
CT76-B推拉窗
CT76-A推拉窗
ZTZS推拉窗
738推拉窗
CT72推拉窗
70W推拉窗
返回顶部
acc米兰体育